Hajdú-Bihar megye, Debrecen
 

Ingatlan adatai
Irányár: 99 990 000 Ft
Típus: ház
Kategória: eladó
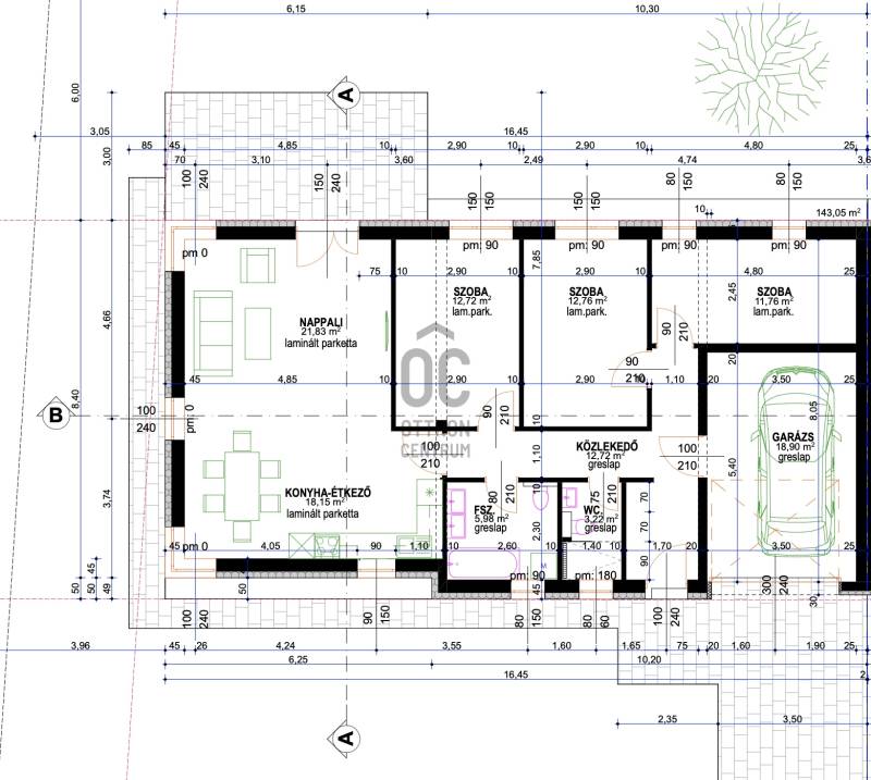
Alapterület: 118 m2
Fűtés: -
Állapota: új
Szobák száma: 4
Építés éve: 2026
Szintek száma: -
Részletes leírás
Ha családosok számára ideális otthont keresel, akkor ez a kiváló állapotú, új építésű ház Debrecen Tégláskert városrészében tökéletes választás lehet számodra!Az ingatlan egy tágas, nettó 118.04 nm-es alapterülettel rendelkezik, amely 3 hálószobát és 1 fürdőszobát foglal magában, így bőven van hely a család minden tagjának.A minimalista kialakítás és az egyedi tervezés garantálja, hogy a modern életstílushoz igazodva élvezhesd az otthon kényelmét. A ház szívében egy tágas nappali található, amely a prémium kivitelezésnek köszönhetően világos és barátságos légkört teremtAz amerikai konyha ideális helyszín a közös étkezésekhez és családi összejövetelekhez, hiszen a terasz mérete 16,65 nm, ahol kellemes estéket tölthettek el a szabadban.A hőszivattyús fűtés, padlófűtés és a mennyezethűtés biztosítja a megfelelő hőmérsékletet az év minden szakában, így a kényelem és a modern technológia találkozása minden szempontból megvalósul.A telek mérete 557 nm, amely lehetőséget ad a gyerekek szabad játékára, valamint a pihenésre a kertben.A garázsban 1 autó számára van hely.A közlekedés is rendkívül kedvező, hiszen a város tömegközlekedési hálózata könnyen elérhető, így a munkahelyed vagy a város egyéb részei gyorsan megközelíthetők.A csendes és biztonságos környék ideális választás családok számára, hiszen a szomszédok barátságosak és támogatóak.Ez az ingatlan nem csupán egy ház, hanem egy otthon, ahol a modern életstílus és a családi értékek találkoznakHa szeretnél többet megtudni erről az exkluzív lehetőségről, bátran keresd fel az elérhetőségeimet, és válaszolok minden kérdésedre!#eladó #ikerház #eladó #ochatvanutca #4hálós #garázs #hőszivattyú #padlófűtés #mennyezetihűtés
További adatok
Telekterület: 578 m2
Kert mérete: 578 m2
Erkély mérete: 14 m2
Felszereltség: -
Parkolás: -
Kilátás: -
Egyéb extrák:  
-
Hirdető adatai
Hirdető neve: Otthon Centrum
Kapcsolattartó: Nemes Edit
Hirdető telefonszáma: +36 70 716 9906
Honlap: -