Szabolcs-Szatmár-Bereg megye, Döge
 

Ingatlan adatai
Irányár: 42 000 000 Ft
Típus: ház
Kategória: eladó
Alapterület: 145 m2
Fűtés: gáz (cirko)
Állapota: -
Szobák száma: 3
Építés éve: 2011
Szintek száma: -
Részletes leírás
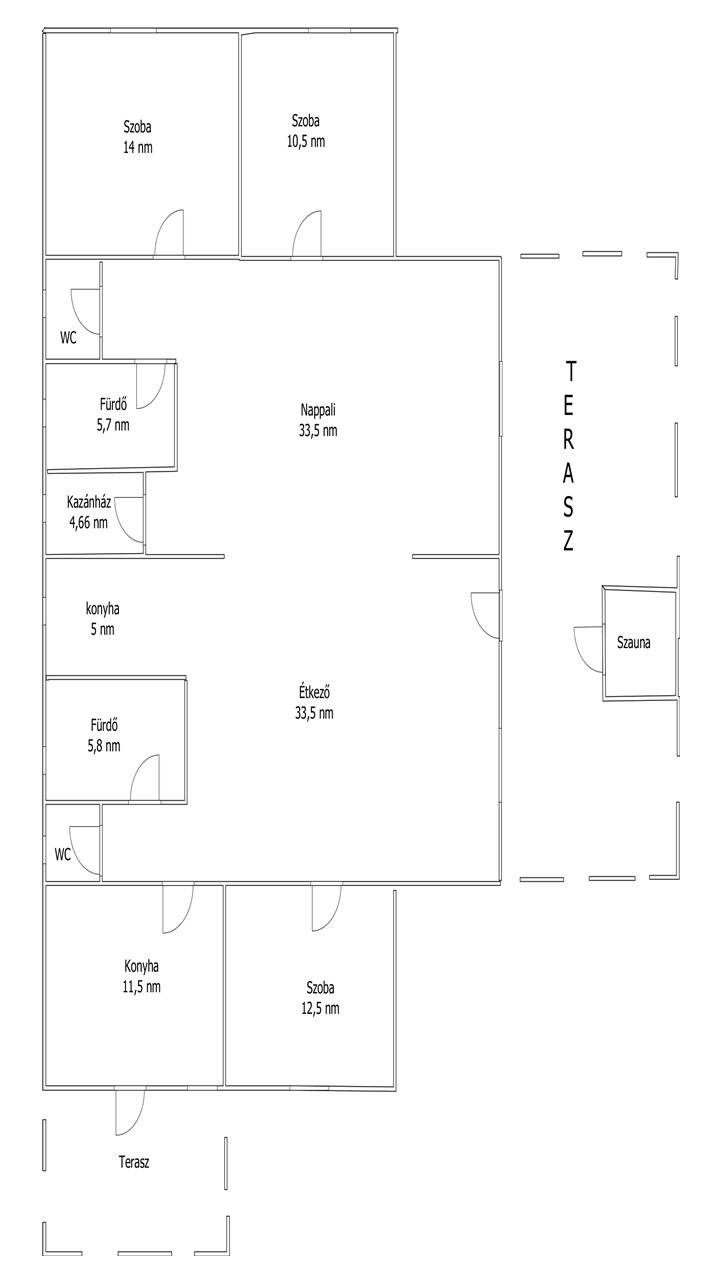
Döge csendes, mégis jól megközelíthető helyén kínálok eladásra egy nettó 140 nm alapterületű családi házat. Az ingatlan 2011 ben épült téglából, hatalmas 41 nm-es terasszal, beton alappal, cserép borítású tetőrendszerrel. Belső elrendezésében 3 külön nyíló szoba, 33 nm nappali a 33 nm-es étkezővel egy légtérben, konyha, 2 db fürdőszoba, 2 db wc, kazánház és gardrób helyiségek. Az otthon melegéről gázcirkó kazán gondoskodik, hőleadó lapradiátorokon keresztül, hűtéséről pedig klíma berendezés, nyílászárói hőszigetelt műanyagok, burkolata járólap és laminált parketta. A nagy terekkel ellátott családi ház ideális otthona lehet nagyobb családoknak. A házhoz 2 db fedett terasz is kapcsolódik, melyből a nagyobb alatt szauna és és egy jakuzzi is, megtalálható, folyamatos 30 C fokos vízzel. Udvara rendezett részben parkosított, térkővel ellátott, melyhez egy kovácsoltvas, automata rendszerű kapun keresztül jutunk az ingatlan területére. Amennyiben bővebb információra lenne szüksége keressen TELEFONON ! Megtekintés előre egyeztetett időpontban ! Vevő ügyfeleink részére minden szolgáltatásunk díjmentes !
További adatok
Telekterület: 1 000 m2
Kert mérete: 1 000 m2
Erkély mérete: 41 m2
Felszereltség: -
Parkolás: -
Kilátás: -
Egyéb extrák:  
-
Hirdető adatai
Hirdető neve: Otthon Centrum
Kapcsolattartó: Pocsai Katalin
Hirdető telefonszáma: +36 70 469 3481
Honlap: -