Tolna megye, Bátaszék
 

Ingatlan adatai
Irányár: 19 900 000 Ft
Típus: ház
Kategória: eladó
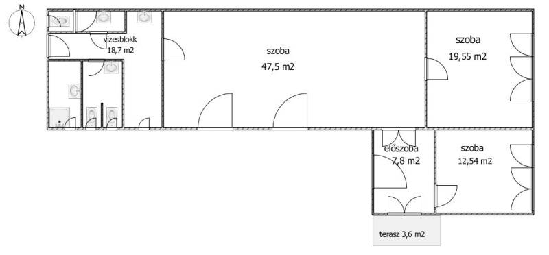
Alapterület: 109 m2
Fűtés: gáz (cirko)
Állapota: -
Szobák száma: 3
Építés éve: 1960
Szintek száma: -
Részletes leírás
A családi ház jelenleg üzletházként van nyilvántartva, de a tulajdonos elindította az átminősítését lakóházzá, hogy lakáshitelt is lehessen felvenni rá.A ház a központhoz közel, csendes helyen található.A falazata vegyes. A tető héjazata cserép.A nagy belmagasság miatt tágasak, világosak a terek.Nagy betonozott udvar és zöldterület is tartozik hozzá. A nyílászárók az eredeti fa szerkezetek.Fűtése gáz-központi fűtés, a meleg vizet villanybojler állítja elő.Az ingatlan közepén egy több, mint 40 m2-es helyiség található, amely igény szerint használható nappali-étkező-konyhának, vagy felosztható kisebb helyiségekre.A házban az eredeti( üzleti) funkciónak megfelelően nagy vizesblokk került kialakításra.Az udvarban 2 autó tárolására is alkalmas betonozott garázs található.Akár üzleti, akár lakáscélra megfelel az Ön igényeinek, hívjon, és megmutatom!Kedves Ügyfelünk, az ingatlanról videót is készítettünk. Ha ezt a hirdetést az Otthon Centrum weboldalán nézi, akkor a videóra a képek után tud kattintani. Ha egy másik weboldalon találta ezt a hirdetést, kérem nyissa meg az Otthon Centrum weboldalát, kattintson a „Regisztrációs szám keresése” menüpontra, és írja be ezt a regisztrációs számot a keresőbe: H501212 Itt meg tudja tekinteni az ingatlanról készült videót. Vagy írjon nekem, és szívesen elküldöm a videót. családi ház 3 szoba nagy terek vegyes falazat garázs nagy telek gázfűtés OC H501212
További adatok
Telekterület: 1 033 m2
Kert mérete: 1 033 m2
Erkély mérete: 4 m2
Felszereltség: -
Parkolás: -
Kilátás: -
Egyéb extrák:  
-
Hirdető adatai
Hirdető neve: Otthon Centrum
Kapcsolattartó: Dániel Lilla Anna
Hirdető telefonszáma: +36 70 388 6296
Honlap: -