Jász-Nagykun-Szolnok megye, Abádszalók
 

Ingatlan adatai
Irányár: 19 500 000 Ft
Típus: ház
Kategória: eladó
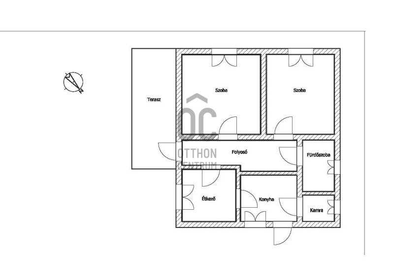
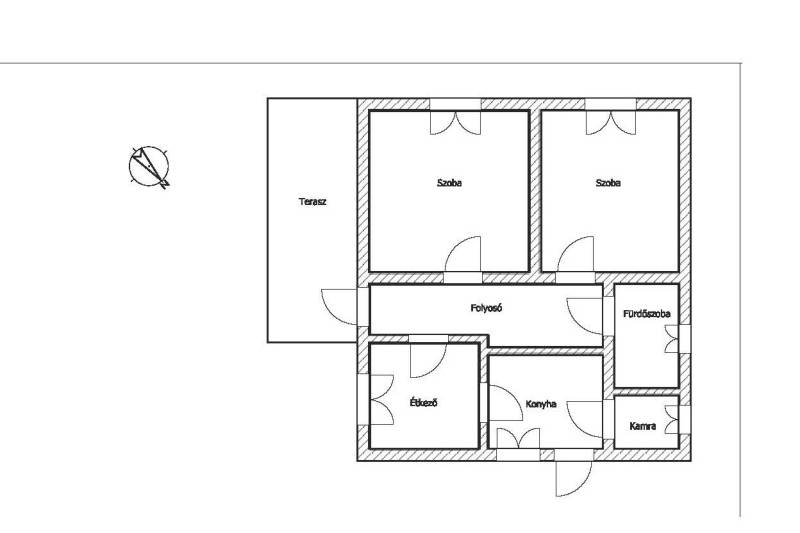
Alapterület: 75 m2
Fűtés: egyéb
Állapota: felújítást igényel
Szobák száma: 2
Építés éve: 1980
Szintek száma: -
Részletes leírás
Abádszalókon a Tisza-tótól csupán egy kőhajításnyira, egyedülálló lehetőségként, kiválló szerkezeti állapotban lévő szilikátból épült családi ház óriási melléképülettel eladó!A Tisza-tó egyszerre ad meg mindent a kalandvágynak, a szemnek, az érzékeknek, s a gyomornak. A zsibongó strand, a természeti ritkaságok, a horgászat, a vízi sportok, kulturális és szórakoztató programok, valamint a gasztronómia felejthetetlen élményt nyújtanak. A 127 km2 nagyságú Tisza-tó egyedisége abból adódik, hogy egy időben más-más arcát mutatja az idelátogató, pihenni, kikapcsolódni, élményekben gazdagodni vágyó turistáknak. A Tiszató több tucat kijelölt túraútvonallal, szakképzett túravezetőkkel várja a természet iránt érdeklődőket. Túraközpontjainkból gyalogos, kerékpáros, lovas vagy vízitúrák keretében fedezhetik fel a Tisza-tó rejtett kincseit.Abádszalók a Tisza-tó régió egyik kiemelt idegenforgalmi területe, ami ebben az esetben azt jelenti , hogy nem csak családi lakhatást , de üzleti apartmanozás lehetőségét is magában hordozza.Az eladásra kínált ingatlan a központhoz és a vízparthoz is közel található. A 75 nm hasznos alapterületü épület két szobát (melyet cserépkályhával fűthető), konyhát és étkezőt, fürdőszobát és kamrát tartalmaz. A szerkezetileg jó állapotban lévő épület kívül belül felújításra szorul. Az épület saroktelken helyezkedik el, így a telek akár meg is osztható. Az ingatlanon egy 180 nm-es tároló is van, ami akár apartmanok kialakításra, helyigényes vállalkozáshoz, vagy hajók tárolására is alkalmassá tehető.Amennyiben további felvilágosítást szeretne, keressen bizalommal!Teljes körű bankfüggetlen hitel ügyintézéssel és az ingatlan adásvételéhez szükséges ügyvédi háttérrel is állok a vevőjelöltek rendelkezésére.
További adatok
Telekterület: 1 135 m2
Kert mérete: 1 135 m2
Erkély mérete: 15 m2
Felszereltség: -
Parkolás: -
Kilátás: -
Egyéb extrák:  
-
Hirdető adatai
Hirdető neve: Otthon Centrum
Kapcsolattartó: Lang Zsolt
Hirdető telefonszáma: +36 70 412 3651
Honlap: -