Pest megye, Dánszentmiklós
 

Ingatlan adatai
Irányár: 48 600 000 Ft
Típus: ház
Kategória: eladó
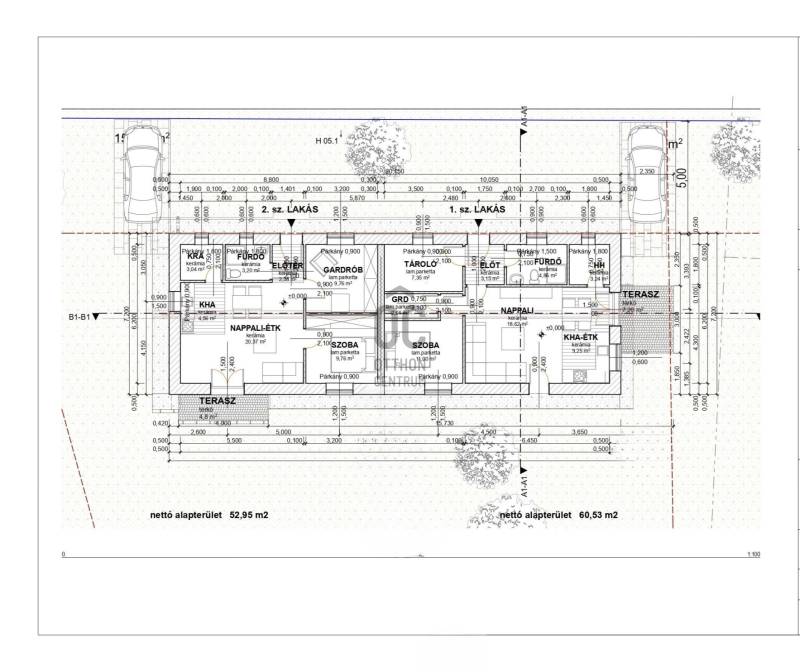
Alapterület: 60 m2
Fűtés: -
Állapota: új
Szobák száma: 2
Építés éve: 2025
Szintek száma: -
Részletes leírás
Új építésű ingatlan, egyedi tervezéssel?Szeretnéd saját igényeid szerint megépíttetni megálmodott OTTHONOD?MI megvalósítjuk Neked! Dánszentmiklós központjában új építésű ingatlanok elérhetőek, leköthetőek!Vállalunk könnyűszerkezetes(fémvázas) és hagyományos tégla építésű házakat is lakhatási engedéllyel, A energetikai tanúsítvánnyal, alacsony rezsiköltséggel! Teljes körű ügyintézés lakhatási engedélyig! (Belefoglalva építészt – szaktervezőket, pénzügyi tanácsadást, jogi tanácsadást, generálkivitelezést, tervezési költséget.)Az épület nettó területre vonatkozó bruttó áraink:-Fémvázas épület esetén: 750.000Ft-tól-Hagyományos (tégla) épület esetén: 810.000Ft-tól(Áraink telekkel együtt értendőek)Előre egyeztetett időpontban személyesen a beruházóval, kivitelezővel,tervezővel tudunk MINDENT egyeztetni, előkészíteni. Nem kell tartanod a meglepetésektől! Több éves együttműködésünk alapja a közös munka folyamán a beruházóval a korrekt, pontos, vevő igényeit szem előtt tartó kivitelezés! Természetesen referencia munkák megtekintése FONTOS és SZÜKSÉGES, hogy biztos döntést tudj hozni!Nem kell attól tartanod, hogy magadra hagyunk, ha elbizonytalanodsz, hiszen Mi az építkezés végéig segítünk, melletted leszünk, ha bármi kérdés felmerül!Alap műszaki tartalom, amit kínálunk:- Modern kivitelezés és tervezés- tégla és könnyű szerkezet- megújuló energiaforrás, hőszivattyús fűtésrendszer- 15 cm-es homlokzati szigetelés - 30 cm-es cellulóz födém szigetelés - elektromos alumínium redőny és szúnyogháló - 3,5 kw-os Gree inverteres klíma - 6000 ft/nm áron választható burkolatok- szinterezett csatorna- belső kert tereprendezése- biztonságos és modern lakóparki környezet- saját kert minden lakáshoz, 300-400 nm Több éves együttműködésünk az építtető céggel, referencia munkák megtekintése a Te biztonságod alapja.Megbízható, pontos és korrekt kivitelezés, folyamatos kapcsolattartás kulcsátadásig!Várható átadás 2026.második félévBővebb információval, valamint fizetési ütemezéssel kapcsolatban várom hívását.Projekt bemutatásaÚj építésű ingatlan, egyedi tervezéssel?Szeretnéd saját igényeid szerint megépíttetni megálmodott OTTHONOD?MI megvalósítjuk Neked! Dánszentmiklós központjában új építésű ingatlanok elérhetőek, leköthetőek!Vállalunk könnyűszerkezetes(fémvázas) és hagyományos tégla építésű házakat is lakhatási engedéllyel, A energetikai tanúsítvánnyal, alacsony rezsiköltséggel! Teljes körű ügyintézés lakhatási engedélyig! (Belefoglalva építészt – szaktervezőket, pénzügyi tanácsadást, jogi tanácsadást, generálkivitelezést, tervezési költséget.)Az épület nettó területre vonatkozó bruttó áraink:-Fémvázas épület esetén: 750.000Ft-tól-Hagyományos (tégla) épület esetén: 810.000Ft-tól(Áraink telekkel együtt értendőek)Előre egyeztetett időpontban személyesen a beruházóval, kivitelezővel,tervezővel tudunk MINDENT egyeztetni, előkészíteni. Nem kell tartanod a meglepetésektől! Több éves együttműködésünk alapja a közös munka folyamán a beruházóval a korrekt, pontos, vevő igényeit szem előtt tartó kivitelezés! Természetesen referencia munkák megtekintése FONTOS és SZÜKSÉGES, hogy biztos döntést tudj hozni!Nem kell attól tartanod, hogy magadra hagyunk, ha elbizonytalanodsz, hiszen Mi az építkezés végéig segítünk, melletted leszünk, ha bármi kérdés felmerül!Alap műszaki tartalom, amit kínálunk:- Modern kivitelezés és tervezés- tégla és könnyű szerkezet- megújuló energiaforrás, hőszivattyús fűtésrendszer- 15 cm-es homlokzati szigetelés - 30 cm-es cellulóz födém szigetelés - elektromos alumínium redőny és szúnyogháló - 3,5 kw-os Gree inverteres klíma - 6000 ft/nm áron választható burkolatok- szinterezett csatorna- belső kert tereprendezése- biztonságos és modern lakóparki környezet- saját kert minden lakáshoz, 300-400 nm Több éves együttműködésünk az építtető céggel, referencia munkák megtekintése a Te biztonságod alapja.Megbízható, pontos és korrekt kivitelezés, folyamatos kapcsolattartás kulcsátadásig!Várható átadás 2026.második félévBővebb információval, valamint fizetési ütemezéssel kapcsolatban várom hívását.
További adatok
Telekterület: 300 m2
Kert mérete: 300 m2
Erkély mérete: -
Felszereltség: -
Parkolás: -
Kilátás: -
Egyéb extrák:  
-
Hirdető adatai
Hirdető neve: Otthon Centrum
Kapcsolattartó: Szoboszlai Katalin
Hirdető telefonszáma: +36 70 469 3221
Honlap: -