Pest megye, Dány
 

Ingatlan adatai
Irányár: 59 900 000 Ft
Típus: ház
Kategória: eladó
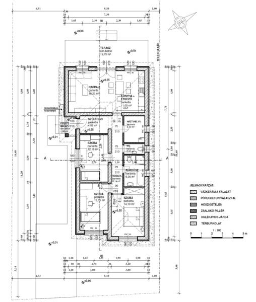
Alapterület: 93 m2
Fűtés: -
Állapota: új
Szobák száma: 4
Építés éve: 2025
Szintek száma: -
Részletes leírás
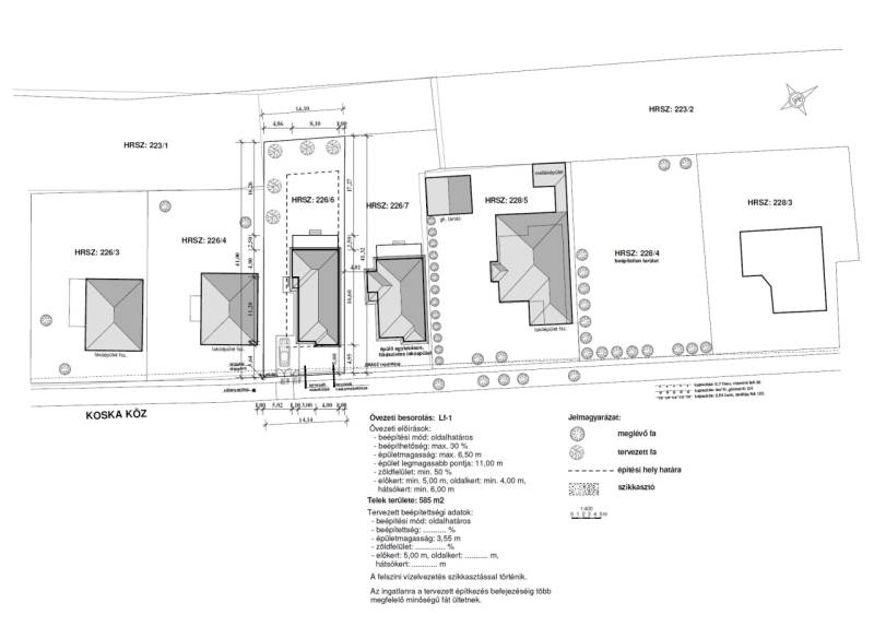
Dányban a Koska Közben, 624 m2-es telken, újonnan épülő nettó 92,85 m2 hasznos lakótérrel rendelkező, önálló családi ház eladó.Egymás mellett 624 m2 (elkelt) és 585 m2-es telken két azonos ingatlant kínálunk.Az építés megkezdődött, a beton alap elkészült.Az ingatlan 30-as Nútféderes tégla falazóelemből épül, fa födémmel.A tető héjazata antracit betoncserép lesz, a homlokzatok 12cm Austrotherm Grafitos EPS, a padló 10cm Austrotherm AT-N100-as, a vízszintes födém 25cm Ásványgyapot szigeteléssel lesz ellátva.Hat légkamrás 3 rétegű evegekkel szerelt nyílászárók kerülnek beépítésre.A fűtést és a melegvíz ellátást hőszivattyús rendszer fogja ellátni, padlófűtéssel. A műszaki tartalom választható az alábbi költségkereten belül:-hidegburkolat:5000.- Ft./m2-ig.-melegburkolat:4000.- Ft./m2-ig-csaptelepek:15.000.- Ft./db-kád vagy zuhany: 40.000.- Ft.-beltéri ajtók:35.000.- Ft./db-Wc Falsík mögötti rendszerElektromos kiépítés:-Konnektorok szobákban: 3 db-Konnektorok nappaliban 4db + internet és kábeltv kiállás-Konnektorok konyhában: 6db-Világítás helyiségenként 1-1 db-Kábeltévé: ElőkészítésMagasabb árú tatalom is választható a különbség finanszírozásával.Riasztó előkészítés és kapu mozgató elektronika előkészítés is készül.Kérésre szívesen küldünk komplett tervdokumentációt, műszaki leírást.A kivitelező korábban Dányban épített, általunk értékesített és birtokbaadott ingatlanjait komoly érdeklődés esetén szívesen megmutatjuk referenciaként.Központi elhelyezkedésének köszönhetően a közelben megtalálhatóak:-Játszótér 150m-Pékség 260m-Helyi és távolsági busz megállója 260m-Coop ABC 280m-Általános iskola 300m-Posta 350m-Gyógyszertár 550m-Háziorvosi rendelő 750m-Óvoda 800mVárható átadás 2026 első negyedév.INGYENES hitel tanácsadás, CSOK Plusz ügyintézés!BANKFÜGGETLEN hitelcentrumunk az összes elérhető bank és hitelintézet ajánlatát versenyezteti az Ön kedvéért, ráadásul DÍJMENTESEN.- Egyedi, bankfiókban nem elérhető kamat- és díjkedvezmények- Hitelképesség vizsgálat- Idő, energia és pénz megtakarítás- Teljes hivatali ügyintézésAmennyiben hirdetésem felkeltette az érdeklődését vagy egyéb információra van szüksége hívjon bizalommal!
További adatok
Telekterület: 585 m2
Kert mérete: 585 m2
Erkély mérete: 20 m2
Felszereltség: -
Parkolás: -
Kilátás: kertre néző
Egyéb extrák:  
-
Hirdető adatai
Hirdető neve: GDN Ingatlanhálózat
Kapcsolattartó: Horváth Péter
Hirdető telefonszáma: +36-70-606-2990
Honlap: -