Budapest, V.kerület
 

Ingatlan adatai
Irányár: 218 000 000 Ft
Típus: lakás (tégla)
Kategória: eladó
Alapterület: 79 m2
Fűtés: elektromos
Állapota: -
Szobák száma: 2
Építés éve: 2018
Szintek száma: -
Részletes leírás
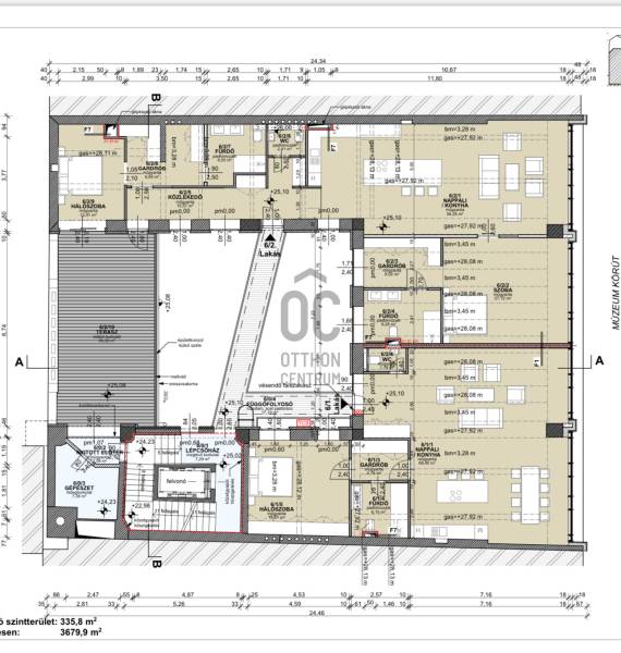
Eladó Budapest belvárosában, az V. kerületben, egy műemlék épületben, a Loft Astoria 6. emeletén található, 83 m2-es, 2 szobás lakás. A nappali a Múzeum körútra néz, padlótól a mennyezetig érő közel 9 m széles ablakfelülettel.Az épület 2018-ban teljesen új belsőt kapott, a tervezők 31 egyedi stílusú loft lakást alakítottak ki. Összességében verhetetlen lokáció, tágas, világos terek és nagy belmagasságok, industrial stílus jellemzi a lakásokat.ALAPTERÜLETA lakás alapterülete 83 m2. Beosztása: előszoba, konyha-étkező-nappali egy légtér,hálószoba, 2 db fürdőszoba.MŰSZAKI JELLEMZŐKA ház adottságaiból fakadóan a lelógó betongerendák, a belső acélszerkezetek, a belmagasság mind támogatják a loft hangulatot, ami talán az utolsó ilyen hiteles épület a belvárosban.A projekt különlegessége, hogy a belső udvarban acél hidak helyettesítik a korábbi körfolyosókat, és egy komoly acélváz tartja a ház hátsó traktusában levő épületszárny egészét. Természetesen a házban LIFT is működik.Minden lakásban fan-coil rendszer biztosítja a fűtést és hűtést, padlófűtéssel kiegészítve.ELHELYEZKEDÉSAz épület Budapest központjában az Astoria metró megállónál található a Múzeum körúton a Hotel Astoria mellett. Itt közlekedik a 47, 49-es villamos, a 7, 107,110, 112-es, stb. busz ésséta távolságra van a Deák Ferenc tér a város legnagyobb tömegközlekedési csomópontja, három metróvonallal (M1, M2, M3). Közelben van két egyetem (ELTE, Corvinus Egyetem), a Váci utca és a Fővám téri Nagycsarnok.VÉTELÁR: 218 MFt (2,6 MFt/m2)A hatodik emeleten található további két lakás jelenleg még szintén eladó, és a fenti lakással egybenyitható (összesen 275 m2). Így, egy kb. 20 m hosszú egybefüggő üvegfelületen keresztül tekinthetünk a városra a hat emeletnyi magasságból. Ezen az emeleten több lakás nincs.Egyedi igényekre szabott lakáshitelekkel állunk rendelkezésére. Bankfüggetlen hitelcentrumunk az országban elérhető összes bank és hitelintézet ajánlatát versenyezteti az Ön számára díjmentesen. Munkatársaink nagy szakmai tapasztalattal várják Önt az előre egyeztetett időpontban akár a normál munkaidő után is. Bővebb információért és a megtekintéssel kapcsolatban hívjon bizalommal!
További adatok
Telekterület: -
Kert mérete: -
Erkély mérete: -
Felszereltség: -
Parkolás: -
Kilátás: utcai
Egyéb extrák:  
-
Hirdető adatai
Hirdető neve: Otthon Centrum
Kapcsolattartó: Oláh Tímea
Hirdető telefonszáma: +36 70 716 9136
Honlap: -