Pest megye, Gödöllő
 

Ingatlan adatai
Irányár: 330 000 000 Ft
Típus: ház
Kategória: eladó
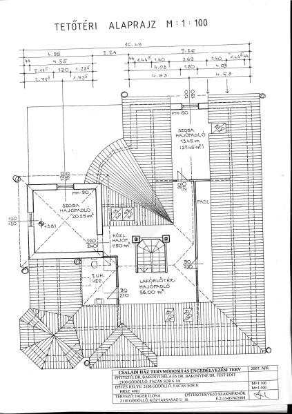
Alapterület: 393 m2
Fűtés: egyéb
Állapota: -
Szobák száma: 7
Építés éve: 2008
Szintek száma: -
Részletes leírás
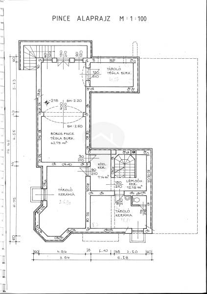
Az Ön szívéhez-lelkéhez is közel áll a mediterrán életérzés? Akkor ezt a toszkán stílusú villát mindenképp látnia kell! Garantáltan beleszeret!Gödöllő egyik legkedveltebb részén a Fácán soron CSENDES KERTVÁROSI KÖRNYEZETBEN kínálunk eladásra egy 1270 nm-es telken elhelyezkedő 393 nm-es IMPOZÁNS mediterrán családi házat.KIFOGÁSTALAN műszaki és esztétikai állapotban lévő, MAI IGÉNYEKNEK maximálisan megfelelő, minden igényt kielégítő családi ház.Minőségi anyagokból felépült házban mindent a kifinomultság és elegancia hirdet: a tágas terek, mediterrán burkolatok, kovácsoltvas korlátok, hatalmas üvegablakok ólomüveg berakással, cserépkályha, fa nyílászárók, fa boltíves beltéri ajtók, spaletták, sok egyedi belsőépítészeti megoldás.Elmúlt napokban FRISSEN FESTETTÉK a belső tereket és a külső homlokzatot, így Önnek már csak beköltözni kell!Ez a GYÖNYÖRŰ NAPFÉNYES, TÁGAS otthon 2008-ban épült, Jáger Ilona (MATE főépítésze) által tervezve. Minden részletre kiterjedő, igényes tervezésnek köszönhetően, a funkcionalitás és exkluzivitás találkozik ebben az ingatlanban. A belső terek kitűnő kialakításának köszönhetően egy nagyobb család tagjai külön-külön is élvezhetik az elvonulást, ugyanakkor a tágas 60 nm-es nappali-konyha-étkező és a hobby helyiségek helyszíne összeköti mind a család mind a baráti társaságot.Az ingatlanban mindenhol radiátorok padlófűtéssel kombinálva kerültek kialakításra, kiegészítve helyiségenként hűtő-fűtő klímával. NAPELEM rendszer kialakítására és a Bosch kazán cserére 2024-ben került sor.A házba belépve a 200 nm-es FÖLDSZINTEN az alábbi helyiségeket találjuk: közel 60 nm-es egyedi tervezésű konyha-étkező-nappali nagy belmagassággal, hatalmas ólomüveg felületekkel. Nappaliban csodálatos, ide tervezett CSERÉPKÁLYHA áll. Konyha mellett kamra, háztartási helység mely mosókonyhaként használható. Földszinten kapott helyet még egy vendégszoba fürdővel, dolgozószoba, hálószoba tágas előtérrel, gardróbszoba, fürdőszoba nagy masszázskáddal, 2 WC kézmosóval. A hatalmas ÓLOMÜVEG ABLAKOS nappaliból kilépve jutunk a 40 nm-es teraszra, mely a minőségéről és egyediségéről híres Otti Manufaktúra kövével burkoltak. Mindenütt fa nyílászáró található, szúnyoghálóval és elektromos redőnnyel felszerelve, kívül fa spalettákkal díszítve. 84 nm-es EMELETEN hatalmas közlekedő, két szoba, gardróbszoba, fürdőszoba kapott helyet.89 nm-es pince 4 helyiségből áll: konditeremnek, wellnessnek alkalmas helyiség, WC, borkönyvtár, borospince. Gyönyörű a hatalmas téglával burkolt hangulatos BOLTÍVES PINCE borkönyvtárral, innen könnyen kijutunk a kertbe és a teraszra. Baráti összejövetelekhez, borvacsorákhoz ideális helyszín.A gondozott kert AUTOMATA ÖNTÖZŐRENDSZERREL, 62 méter mély bevizsgált ivóvíz minőségű fúrt kúttal, esővíz gyűjtő tartállyal ellátott. Az előkert és a kert is folyamatosan gondozott, egész évben látványos növényekkel, gyümölcsfákkal ültetett. Kert hátsó részében egy nagy kutyakennel került elhelyezésre, melyben több kutya is tartható.Kovácsoltvas kerítés kapuval felszerelt, melyen keresztül bejutva az udvarba 3-4 autó számára biztosítva a felszíni parkolás.Egész házra jellemző a magas minőség, kényelem, elegancia, egyediség, melegség, minden ami egy otthontól várható. Ide nagyon jó érzés haza érkezni! Jó energiákkal megáldott! Gyere el és érezd te is!Ez az ingatlan valódi ritkaság a piacon!Irodánk az értékesítés első lépésétől az utolsóig az Ön rendelkezésére áll. Amennyiben valamelyik ingatlanunkat jelenlegi ingatlana értékesítése után kívánja megvásárolni, vagy ha egy megbízható irodával szeretne együttműködni, amely teljes körű ügyintézést biztosít megfizethető áron, forduljon hozzánk bizalommal!
További adatok
Telekterület: 1 270 m2
Kert mérete: 1 270 m2
Erkély mérete: 40 m2
Felszereltség: -
Parkolás: -
Kilátás: utcai
Egyéb extrák:  
-
Hirdető adatai
Hirdető neve: Intor Ingatlan Powered By RH
Kapcsolattartó: Kertész Rebeka
Hirdető telefonszáma: +36 70 467 6820
Honlap: -