Nógrád megye, Buják
 

Ingatlan adatai
Irányár: 25 000 000 Ft
Típus: ház
Kategória: eladó
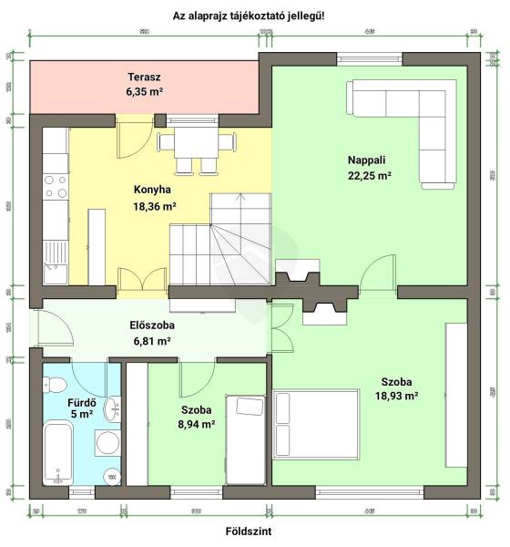
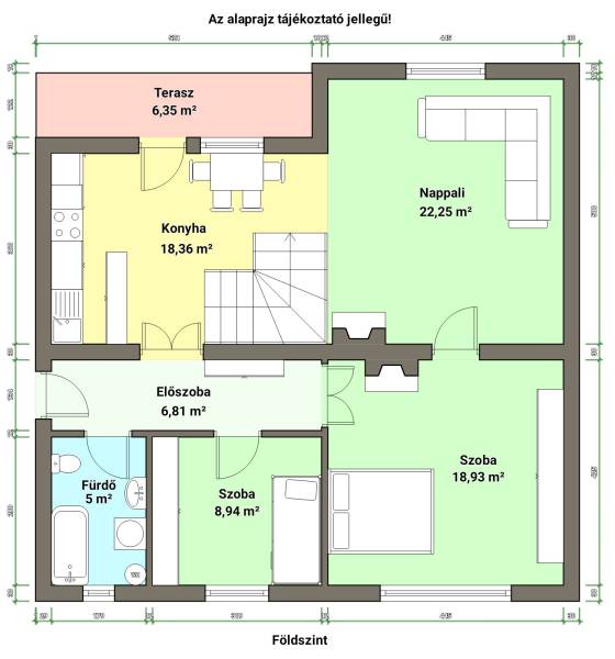
Alapterület: 140 m2
Fűtés: -
Állapota: -
Szobák száma: 5+1
Építés éve: 1985
Szintek száma: -
Részletes leírás
Képzeld el, hogy egy csendes, békés környéken található otthonra vágysz, ahol a család minden tagja megtalálja a számításait. Buják, Nógrád megye szívében, az Alkotmány utcában kínálunk eladásra egy TÉGLÁBÓL épült használt, lakóingatlant, amely tökéletes választás lehet családosok számára. Az ingatlan nettó 140 nm-es alapterülettel rendelkezik, és a telken több mint 990 nm-es kert várja, hogy felfedezd. A 4 hálószoba és 2 nappali elég teret biztosít ahhoz, hogy mindenki kényelmesen elférjen, legyen szó gyerekekről, vendégekről vagy akár otthoni irodáról. A fürdőszoba teljesen FELÚJÍTOTT, és a cserépkályha fűtés gondoskodik a kellemes melegről a téli hónapokban. A gázcsonk telken belül található, a többi közmű rákötése megtörtént. 3x16 amper és 380V ipari áram is rendelkezésre áll. A világos, napfényes helyiségek barátságos légkört teremtenek, ahol az egész család jól érezheti magát. A 4 nm-es terasz és a 3 nm-es erkély ideális helyszínt biztosít a reggeli kávézáshoz vagy a nyári estéken való pihenéshez. Az épület kívül-belül igény szerinti felújításra szorul.Az ingatlan tehermentes, így gyorsan birtokba veheted új otthonodat. A környék CSENDES és biztonságos. A település és a környék számos lehetőséget kínál a szabadidő eltöltésére, legyen szó kirándulásokról a közeli hegyekben vagy a helyi közösségi programokról. A közlekedés is kiváló, hiszen az autóval könnyedén elérheted a közeli városokat, míg a tömegközlekedés is biztosítja a gyors és kényelmes utazást.Ne hagyd ki ezt a nagyszerű lehetőséget, hogy egy igazán otthonos és barátságos ingatlanra lelj, ahol a családod boldogan élhet. Ha bármilyen kérdésed van, vagy szeretnéd megtekinteni az ingatlant, bátran keress meg! Budapesti vagy Hatvani lakáscsere is szóba jöhet!
További adatok
Telekterület: 992 m2
Kert mérete: 992 m2
Erkély mérete: 14 m2
Felszereltség: -
Parkolás: -
Kilátás: utcai
Egyéb extrák:  
-
Hirdető adatai
Hirdető neve: Ingatlanmentor powered by Rock Home
Kapcsolattartó: Horváth Tibor
Hirdető telefonszáma: +36 70 467 6871
Honlap: -