Pest megye, Leányfalu
 

Ingatlan adatai
Irányár: 266 532 000 Ft
Típus: ház
Kategória: eladó
Alapterület: 197 m2
Fűtés: -
Állapota: új
Szobák száma: 5
Építés éve: 2025
Szintek száma: -
Részletes leírás
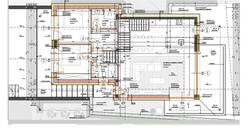
Prémium minőségű, új építésű házak Leányfalun, csodálatos kilátással!A festői Dunakanyarban - mégis közel Budapest határához - a Visegrádi-hegység lábánál fekvő Leányfalun kínáljuk eladásra ezeket a magas minőségben épített, mind műszakilag, mind külső megjelenésében modern önálló ingatlanokat egy csodálatos, panorámás telken.A épületet három egymás mögött álló, egymásba metsződő tömeg formálja, melyek padlósíkjai a meredek tereplejtést követik. Az első épülettömeg homlokzata világos kőburkolatot kap, a mögötte lévő emeleti ráépítés fehér vakolt homlokzatú, és a hegy felőli harmadik tömeg ismét világos kőburkolatú. Az utcafronti földszintes tömeg részben lapostetős kialakítású, itt helyezkedik el az emeleti tér terasza. A további két épülettömegen átlós kialakítású félnyeregtetők találhatóak. Az épület főhomlokzatán és hátsó homlokzatán fémszerkezetű előtetők épülnek.A házban a megfelelő hőmérséklet leadásáról mennyezet hűtés/fűtés, Illetve padlófűtés gondoskodik, és napelem-, valamint riasztó előkészítést is kap.A már jelenleg is szerkezetkész ingatlan a nagyközség egy csendes, könnyedén megközelíthető zsákutcájában található. A hatalmas parkosított telken 4 önálló ház kap helyet, mindegyikhez biztosított a privát bejárás.Leendő tulajdonosai megvásárolhatják szerkezetkész, vagy akár kulcsrakész állapotban is.Vételár:- alacsony (40%) szerkezetkész: 106.612.800 Ft- magas (50%) szerkezetkész: 133.266.000 Ft- kulcsrakész: 266.532.000 FtTovábbi információért keressen nyugodtan, akár hétvégén is!
További adatok
Telekterület: 810 m2
Kert mérete: 810 m2
Erkély mérete: 80 m2
Felszereltség: -
Parkolás: -
Kilátás: panorámás
Egyéb extrák:  
-
Hirdető adatai
Hirdető neve: GDN Ingatlanhálózat
Kapcsolattartó: Fáczán Dávid
Hirdető telefonszáma: +36-30-398-4455
Honlap: -