Pest megye, Kiskunlacháza
 

Ingatlan adatai
Irányár: 89 900 000 Ft
Típus: ház
Kategória: eladó
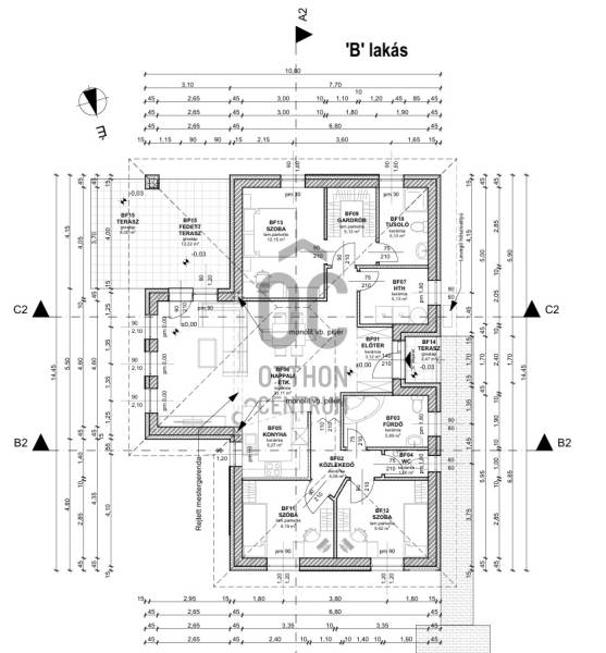
Alapterület: 99 m2
Fűtés: -
Állapota: új
Szobák száma: 4
Építés éve: 2025
Szintek száma: -
Részletes leírás
Projekt bemutatásaKiskunlacházán újépítésű családi házak eladók✅ téglaépítésű ✅ nettó 99 m2✅ 6 db ház, házak nem kapcsolódnak egymáshoz✅ amerikai konyhás nappali + 3 hálószoba + gardrób vagy amerikai konyhás nagy nappali + 4 hálószoba✅ fűtés: hőszivattyú + padlófűtés✅ telek méretek: 624 m2 - 841 m2Hitel, CSOK, Otthon Start igényelhetőÁtadás: 2025 év vége
További adatok
Telekterület: 841 m2
Kert mérete: 841 m2
Erkély mérete: 23 m2
Felszereltség: -
Parkolás: -
Kilátás: -
Egyéb extrák:  
-
Hirdető adatai
Hirdető neve: Otthon Centrum
Kapcsolattartó: Joó Krisztina
Hirdető telefonszáma: +36 70 469 3111
Honlap: -