Pest megye, Telki
 

Ingatlan adatai
Irányár: 399 900 000 Ft
Típus: ház
Kategória: eladó
Alapterület: 420 m2
Fűtés: gáz (cirko)
Állapota: -
Szobák száma: 6
Építés éve: 2011
Szintek száma: -
Részletes leírás
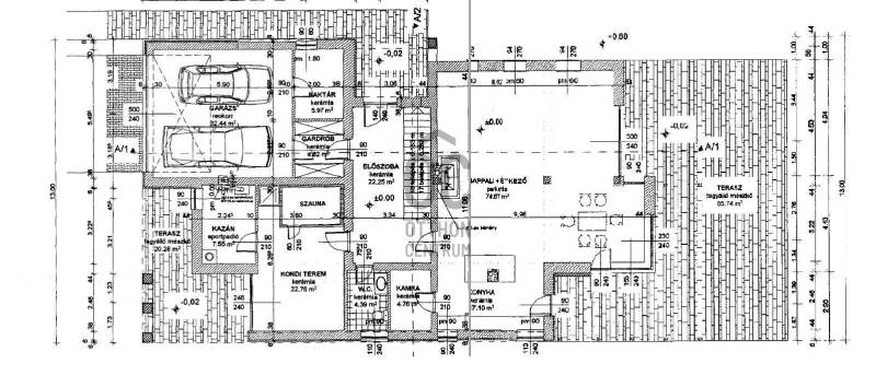
Telkiben, a település legkedveltebb utcájában, 2011-ben Bényei István ( B13 Építőművész KFT) tervei alapján épült, modern stílusú, nappali + 5 hálószobás, tágas családi ház eladó. Modern, elegáns, prémium anyagok felhasználásával épült a 420nm-es családi házban minden helyiség tágas és világos a padlószintig érő nyílászáróknak köszönhetően. A konyha újszerű, modern háztartási gépekkel felszerelt, a hidegburkolatok kiváló színvonalú lapok, csempék, a melegburkolat gyönyörű gőzölt egzotikus faparketta.A földszinten, a ház központja a dél-nyugati tájolású 80nm-es nappali-konyha-étkező melyhez 85nm-es terasz kapcsolódik. Ezen a szinten alakították ki a konditermet, szaunát, kazánházat és a két állásos garázst tárolóval.Az emeleten 4 tágas, külön nyíló, teraszkapcsolatos hálószoba gardróbszobákkal és gardróbszekrényekkel, valamint két fürdőszoba került kialakításraA fűtést 45 kW-os (ipari) kondenzációs kazán biztosítja vegyes, padló és radiátoros fűtéssel, emellett minden szoba hűtő-fűtő klímákkal felszerelt, valamint vízszűrő és vízlágyító rendszer és központi porszívó is beszerelésre került.A ház fenntartása a korszerű gépészet, a hőszigetelés és a jó minőségű nyílászárók miatt nagyon kedvező.Telki népszerűsége töretlen, természetközeli, nyugalmas környezete, gyönyörű fekvése, kiváló infrastruktúrája és Budapest gyors megközelíthetősége teszi vonzóvá.
További adatok
Telekterület: 950 m2
Kert mérete: 950 m2
Erkély mérete: 165 m2
Felszereltség: -
Parkolás: -
Kilátás: -
Egyéb extrák:  
-
Hirdető adatai
Hirdető neve: Otthon Centrum
Kapcsolattartó: Saru Kriszta
Hirdető telefonszáma: +36 70 469 3021
Honlap: -