Somogy megye, Siófok
 

Ingatlan adatai
Irányár: 69 990 000 Ft
Típus: nyaraló
Kategória: eladó
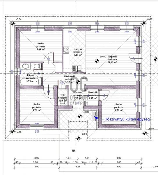
Alapterület: 93 m2
Fűtés: -
Állapota: új
Szobák száma: 4
Építés éve: 2025
Szintek száma: -
Részletes leírás
Fedezze fel álmai otthonát Siófok szívében – új 4 szobás ház várja Önt!Ingatlanok 92,7 m² bruttó plusz 15 m² terasszal rendelkeznek.✅️Ami három szobát, egy nappalit, konyhát, fürdőszobát, mellékhelyiséget, és egy gardróbot takar.✅️Két különálló épület ami tökéletes nyaralónak, vagy akár családiháznak is.????A fűtést hőszivattyús padlófűtés rendszer látja el, amihez \"H\" órát is biztosítunk a nulla százalékos fűtéshez.Külön kérésre lehet kérni napelemet is .☀️☀️☀️Az ingatlanok hőszigetelése 15 cm homlokzati, 10 cm lábazati, és 25 cm mennyezeti szigetelést fognak kapni, illetve 6 légkamrás 3 rétegű műanyag ablakok biztosítják hogy egészévben meleg/hűvös és takarékosak maradjanak a lakások.❄️Az ingatlanokat még a maga igényei szerint tudja alakítani mivel az épületek Márciusban fognak elindulni mint saját beruházás, de ha előbb tulajdonosra találnak akkor előrébb hozzuk az átadást.A környék nemcsak a csendes, családias hangulatáról híres, hanem kiváló közlekedési lehetőségekkel is rendelkezik.A tömegközlekedés könnyen elérhető, így a város központja vagy a Balaton partja néhány perc alatt megközelíthető.Az autóval közlekedők számára a közeli főutak gyors és kényelmes elérhetőséget biztosítanak, így akár a környező települések is könnyen felfedezhetők.A környék biztonságos és barátságos, ideális hely a gyerekek számára, akik szabadon játszhatnak az utcán, miközben Ön nyugodtan pihenhet.A közeli iskolák, óvodák és játszóterek mind hozzájárulnak ahhoz, hogy itt valóban otthon érezze magát.A helyi közösség aktív és támogató, így könnyen barátokra találhat, és részt vehet a helyi rendezvényeken.✉️Kérjük, vegye fel velünk a kapcsolatot a helyszíni megtekintés érdekében, és ne habozzon, mert ez a lehetőség hamar elkel!
További adatok
Telekterület: 400 m2
Kert mérete: 400 m2
Erkély mérete: 15 m2
Felszereltség: -
Parkolás: -
Kilátás: -
Egyéb extrák:  
-
Hirdető adatai
Hirdető neve: Otthon Centrum
Kapcsolattartó: Bezzeg Nikoletta
Hirdető telefonszáma: +36 70 716 8431
Honlap: -