Pest megye, Kartal
 

Ingatlan adatai
Irányár: 74 900 000 Ft
Típus: ház
Kategória: eladó
Alapterület: 164 m2
Fűtés: gáz (cirko)
Állapota: -
Szobák száma: 5
Építés éve: 2002
Szintek száma: -
Részletes leírás
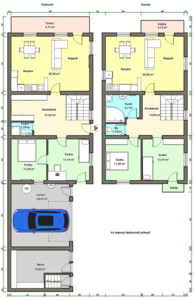
Árcsökkenés!!!!TÖBB GENERÁCIÓ együttélésére alkalmas nettó 164 m2-es, 2002-ben TÉGLÁBÓL épült családi ház eladó 2294 m2-es kerttel, amely akár telephelynek vagy gazdálkodásra is alkalmas a külön bejáratnak köszönhetően.Az épület 38-as porotherm téglából épült + 5 cm külső DRYVIT SZIGETELÉST kapott. További előnye, hogy a TETŐSZERKEZET 4 évvel ezelőtt új betoncserép fedést kapott, ereszcsatornával, ezáltal külsőleg költségmentes állapotban van. Szerkezetileg KIFOGÁSTALAN az ingatlan. Az épület előtt kb. 4-5 autó is kényelmesen tud PARKOLNI.Földszint: nettó 82 m2-es, amerikai konyhás nappali, lépcsőház-közlekedő, fürdőszoba és két szobából (tárolóból) áll.Emelet: nettó 82 m2-es, amerikai konyhás nappali, lépcsőház-közlekedő, fürdőszoba, wc és szintén két hálószoba található.Melléképület: 30 m2-es GARÁZS, 14 m2-es tároló, 8 m2-es pinceKartal település folyamatosan fejlődik, iskola, óvoda, egyéb intézmények, üzletek megtalálhatóak. Az ingatlan KÖZPONTI elhelyezkedésének köszönhetően, szinte minden 3-5 percen belül elérhető. Az M3-as autópálya kb. 10-15 perc, buszmegálló a ház előtt, amellyel szintén BUDAPEST 40-50 percen belül elérhető!Ha olyan családi házat szeretne vásárolni, ahol SAJÁT IGÉNYE szerint lehet alakítani a belső tereket, vagy szeretne vállalkozást üzemeltetni, akkor ez kiváló LEHETŐSÉG hosszú távon. További információért hívjon bizalommal!
További adatok
Telekterület: 2 294 m2
Kert mérete: 2 294 m2
Erkély mérete: 14 m2
Felszereltség: -
Parkolás: -
Kilátás: utcai
Egyéb extrák:  
-
Hirdető adatai
Hirdető neve: Ingatlanmentor powered by Rock Home
Kapcsolattartó: Horváth Tibor
Hirdető telefonszáma: +36 70 467 6871
Honlap: -