Pest megye, Vácrátót
 

Ingatlan adatai
Irányár: 74 850 000 Ft
Típus: ház
Kategória: eladó
Alapterület: 80 m2
Fűtés: -
Állapota: új
Szobák száma: 4
Építés éve: 2025
Szintek száma: -
Részletes leírás
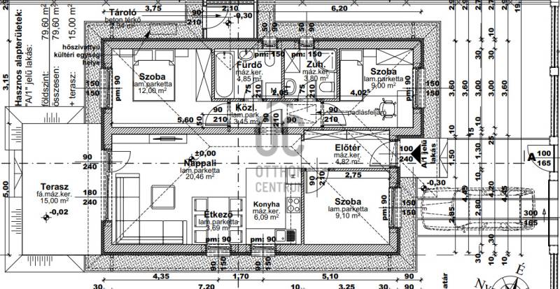
Vácrátót egyik legfelkapottabb részén, a Szent István-LAKÓPARKBAN várja Önt ez az új építésű, PRÉMIUM kivitelezésű családi ház.A környék BIZTONSÁGOS, barátságos lakóközösséggel rendelkezik, amely ideális választás CSALÁDOK számára, de befektetési célokra is tökéletes lehetőség.A tömegközlekedési lehetőségek kiválóak, így a város többi része is könnyen elérhető, legyen szó munkáról vagy szabadidős programokról.A Szent István-lakópark CSÖNDES környezete garantálja a NYUGODT életvitelt, miközben a város központja és a legfontosabb közlekedési csomópontok mindössze néhány percre találhatók.Ez az újonnan épülő ingatlan ebben a különleges lakóparkban nem csupán egy OTTHON, hanem egy ÉLETSTÍLUS, amely a modern kényelmet és a természet közelségét ötvözi, és ahol a kutyát sétáltató és babakocsit tologató szomszédok kedvesen egymásra köszönnek.Az ingatlan 80 négyzetméteres alapterülettel és egy 400 négyzetméteres kerttel rendelkezik, amely tökéletes helyszín a pihenéshez és a szabadidős tevékenységekhez.A házban NÉGY TÁGAS SZOBA található, amelyek világos és barátságos teret adnak lakóinak.A 30nm-es AMERIKAI KONYHÁS nappali a modern életstílusnak megfelelően lesz kialakítva és ideális helyszín lesz a családi összejövetelekhez vagy baráti találkozókhoz.A 2 FÜRDŐSZOBA egyedi tervezésű, a legújabb trendeknek megfelelő burkolatokkal lesznek kivitelezve.Az egyik fürdő kádas, a másik zuhanyzós, mindkettőben van wc és kézmosó, ami nagyban \"csökkenti a sorállást\" a reggeli és esti készülődéseknél.A 15 négyzetméteres TERASZRÓL gyönyörű kilátás nyílik a kertünkre, a rendezett lakóparkra és a csöndes utcára.A kert és terasz tökéletes helyszín a reggeli kávé elfogyasztására vagy a naplementék élvezetére.Az ingatlan HŐSZIVATTYÚVAL és PADLÓFŰTÉSSEL rendelkezik, amely nemcsak környezetbarát, hanem gazdaságos megoldást is jelent a fűtési költségek csökkentésére.Az árban benne van egy viacolorozott AUTÓBEÁLLÓ és egy KERTI TÁROLÓ is.A PRÉMIUM kivitelezés és a VILÁGOS terek egyedülálló élményt kínálnak, ráadásul a burkolatok még választhatók, így a kialakításba Ön még beleszólhat.Amennyiben bármilyen kérdése van az ingatlannal vagy a környékkel kapcsolatban, vagy szeretné megtekinteni, hívjon bizalommal a hét bármely napján.Irodánk ingyen Csok+ és hitelügyintézéssel támogatja a vásárlókat.
További adatok
Telekterület: 400 m2
Kert mérete: 400 m2
Erkély mérete: 15 m2
Felszereltség: -
Parkolás: -
Kilátás: -
Egyéb extrák:  
-
Hirdető adatai
Hirdető neve: Otthon Centrum
Kapcsolattartó: Horváth Zoltán
Hirdető telefonszáma: +36 70 412 3201
Honlap: -