Fejér megye, Velence
 

Ingatlan adatai
Irányár: 89 000 000 Ft
Típus: ház
Kategória: eladó
Alapterület: 89 m2
Fűtés: -
Állapota: új
Szobák száma: 4
Építés éve: 2022
Szintek száma: -
Részletes leírás
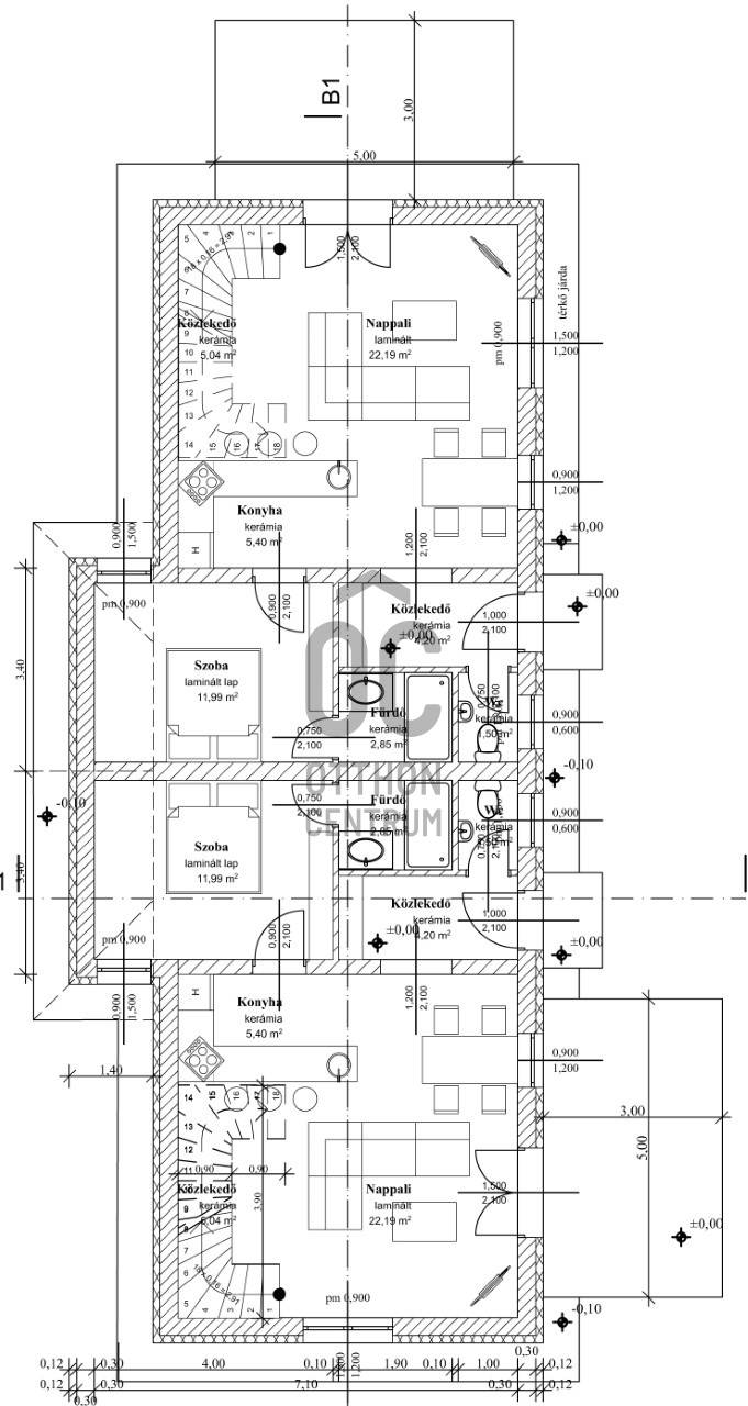
Velencei-tó északi oldalán 10 percnyi sétára a tótól új építésű ikerházi lakás saját használatú kertrésszel, gépkocsi beállóval eladó!Változás!!! A vázrajzon látható házak közül csak a hátsó ikerház épül fel, így nagyobb zöldterület marad!!!!ikerház 2. lakásRövid műszaki leírás:* Amerikai konyhás nappali, 3 szoba, 2 fürdőszoba +1 külön wc* 89,2 nm hasznos alapterület + 15 nm-es terasz* 30cm-es Bakonytherm tégla fal* Padlóban lépésálló hőszigeteléssel, födémsíkban hő és hangszigetelő anyaggal, homlokzaton eps, lábazaton xps hőszigetelő táblával* Fűtésrendszerét padlófűtés látja el, a szobákban pedig Fan coil légbefúvókon keresztül jut el a meleg.* Hőlégszivattyú, és napelem ami működteti a rendszert, ami a ház hűtését is ellátja.* Tetőn elhelyezett napelem* Műanyag 3 rétegű hőszigetelő üvegezésű nyílászárók, alumínium redőnyökkel* Monolit vasbeton gerendás födémmel* Tetőhéjazat: Bramac beton cseréppel történik terrakotta színben* Burkolat: konyhában, közlekedő részen, fürdőszobában, mellékhelyiségben és a teraszon kerámia burkolat, nappaliban szobákban laminált parketta. 5500 ft/m2 árban választható.* Homlokzat: nemes vakolat fehér és tojáshéj színben, lábazat vörös színű tégla burkolattal* BB energetikai minősítésű besorolássalKörnyékA környéken bölcsőde, óvoda, iskola, orvosi rendelő, gyógyszertár és a bevásárlóközpont is megtalálható.A buszmegálló csak néhány perc sétára van, illetve az autópálya is könnyen megközelíthető.A részletekkel kapcsolatban keressen bizalommal!Ha a vásárláshoz a jelenlegi ingatlana eladására van szükség, akkor abban is szívesen együttműködöm Önnel!Amennyiben hitelre van szüksége, teljes körű és díjmentes hitel ügyintézéssel állunk rendelkezésére!
További adatok
Telekterület: 454 m2
Kert mérete: 454 m2
Erkély mérete: 15 m2
Felszereltség: -
Parkolás: -
Kilátás: -
Egyéb extrák:  
-
Hirdető adatai
Hirdető neve: Otthon Centrum
Kapcsolattartó: Zóka Erika
Hirdető telefonszáma: +36 70 388 6161
Honlap: -