Budapest, X.kerület
 

Ingatlan adatai
Irányár: 31 900 000 Ft
Típus: lakás (tégla)
Kategória: eladó
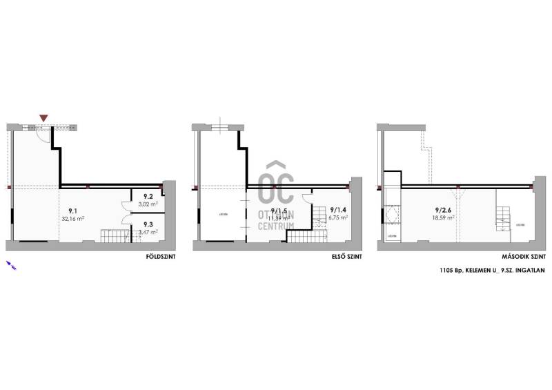
Alapterület: 73 m2
Fűtés: -
Állapota: -
Szobák száma: 4
Építés éve: 1950
Szintek száma: -
Részletes leírás
Budapesten élhető terekkel OLCSÓN!!!!Hihetetlen áron, London belvárosát idéző stílusban, egyedi megoldásokkal, élhető terekkel, belső 3 szintes, 3+2 fél szobás ingatlan, SAJÁT KERTRÉSSZEL! Alacsony fenntartással, verhetetlen áron vásárolhat nagyobb, teljesen új életteret! Kap mellé egy életérzést is! Frissen felújított, Ön lakja be elsőnek!Új gépészet, elektromos hálózat, világítástechnika, nyílászárók, bejárati ajtó, hideg és meleg burkolatok! Földszintes lakóépületben, kiváló lokációval, csendes, kellemes zöld fás környezetben, parkok ölelésében, egyirányú utcában található!Az ingatlan használati megosztási szerződéssel kerül értékesítésre! Készpénzes vevőt várunk!Hívjon és megmutatom Önnek minden értelemben ÚJ otthonát, irodáját, befektetési ingatlanát! Keressen akár hétvégén is!
További adatok
Telekterület: -
Kert mérete: -
Erkély mérete: -
Felszereltség: -
Parkolás: -
Kilátás: udvari
Egyéb extrák:  
-
Hirdető adatai
Hirdető neve: Otthon Centrum
Kapcsolattartó: Mózes Adrienne
Hirdető telefonszáma: +36 70 388 6211
Honlap: -