Pest megye, Délegyháza
 

Ingatlan adatai
Irányár: 85 900 000 Ft
Típus: ház
Kategória: eladó
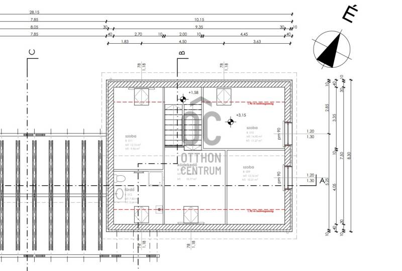
Alapterület: 115 m2
Fűtés: elektromos
Állapota: új
Szobák száma: 5
Építés éve: 2025
Szintek száma: -
Részletes leírás
Délegyházán megbízható, korrekt tulajdonostól eladó újépítésű, fedett kocsibeállós ikerház eladó✅️ 115 m2 hasznos alapterületű, bruttó 128 m2✅️ téglaépítésű✅️ amerikai konyhás nappali + 4 hálószoba (ebből egy a földszinten)✅️ az emeleten még egy nappali vagy közösségi tér. akár szoba kialakítható✅️ fűtése: cirkó ✅️ két fürdőszoba✅️ 10 cm dryvit hőszigetelés✅️ fedett kocsibeálló✅️ telek kb: 450 m2✅️ céges kivitelezés, aktuális állami támogatások igénybe vehetőekA két lakás csak a fedett kocsibeállókkal ér össze, tehát közös fal egyáltalán nincs.
További adatok
Telekterület: 370 m2
Kert mérete: 370 m2
Erkély mérete: 10 m2
Felszereltség: -
Parkolás: -
Kilátás: -
Egyéb extrák:  
-
Hirdető adatai
Hirdető neve: Otthon Centrum
Kapcsolattartó: Joó Krisztina
Hirdető telefonszáma: +36 70 469 3111
Honlap: -