Pest megye, Dány
 

Ingatlan adatai
Irányár: 45 990 000 Ft
Típus: kereskedelmi/ipari ingatlan
Kategória: eladó
Alapterület: 170 m2
Fűtés: -
Állapota: -
Szobák száma: -
Építés éve: 1990
Szintek száma: -
Részletes leírás
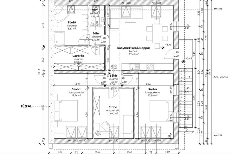
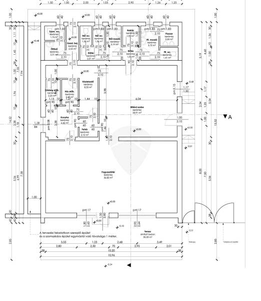
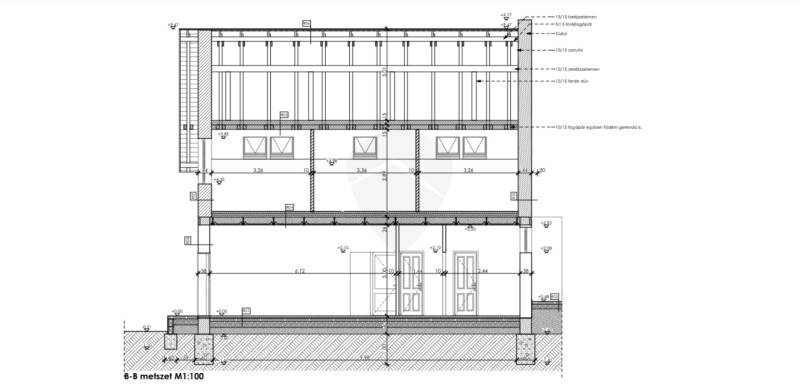
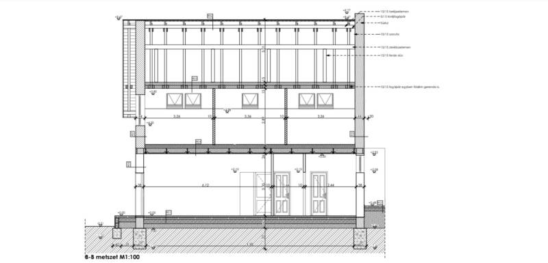
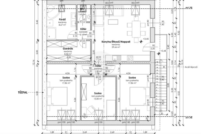
Eladásra kínálok Dány főútján egy remek befektetési lehetőséggel rendelkező ingatlant!Az ingatlan eddig étteremként üzemelt aminek nagy hírneve volt és lenne is..Jelenleg 170 négyzetméter alapterülettel rendelkezik, amelyben található konyha, mellékhelyiségek, élelmiszer feldolgozók, üzlettér és raktár is. FONTOS! A képek között feltöltésre került az ingatan tovább hasznosításáról szóló terv is. Ez annyit jelent, hogy a jelenlegi födémre egy különálló lakóingatlan került tervezésre és engedélyeztetésre. Ehhez a komplett tervdokumentáció rendelkezésre áll. Az étterem az összes engedéllyel rendelkezik, így azokat kiváltani már nem szükséges. Azonnal birtokba vehető és üzemeltethető. Ne hagyja ki ezt a kivételes lehetőséget!Intor Ingatlan – Otthont biztonságban!Irodánk az értékesítés első lépésétől az utolsóig az Ön rendelkezésére áll. Amennyiben valamelyik ingatlanunkat jelenlegi ingatlana értékesítése után kívánja megvásárolni, vagy ha egy megbízható irodával szeretne együttműködni, amely teljes körű ügyintézést biztosít megfizethető áron, forduljon hozzánk bizalommal!
További adatok
Telekterület: -
Kert mérete: -
Erkély mérete: -
Felszereltség: -
Parkolás: -
Kilátás: -
Egyéb extrák:  
-
Hirdető adatai
Hirdető neve: Intor Ingatlan Powered By RH
Kapcsolattartó: Kertész Rebeka
Hirdető telefonszáma: +36 70 467 6820
Honlap: -